隨著“新基建”的發展,數據中心作為數字經濟、企業數字化轉型、智能AI等技術的載體,迎來了新一輪的快速增長,國內數據中心產業未來有望保持30%以上的年復合增長率。
高增長的數據中心勢必帶來建設用地、電力、 水資源等材料的消耗量逐年攀升,國家出臺“東數西算、碳達峰、碳中和”等系列政策措施,以綠色能源供應和算力需求的大戰略為支點,制定數據中心選址、布局、規劃、管理的統一方針,僅依賴短期內擴大外部土地和資源的供應不僅代價高昂,且與國家的可持續發展戰略相悖,因此可以通過對建筑本身進行合理的研究與優化,以達到提高數據中心建筑利用率的目的。
參考GB50174-2017《數據中心設計規范》第4.3.4條:

可根據單機柜功率4.4kW、6kW、8kW、12kW等不同使用需求,結合冷熱通道暖通專業要求寬度,合理選擇柱網:
例如4.4kW-6kW/架機房柱網多選擇9.6米柱距,具體詳見下圖
8kW/架機房根據冷通道最小寬度1.5米,柱網可為9.9米
12kW/架機房根據冷通道寬度1.8米,柱網可為10.2米及8.4米相結合
綜上,根據冷熱通道寬度要求,合理選擇柱網能有效地減少混凝土柱占用機柜空間,最直觀地提高出柜率,是最基礎、簡單的一種方法。

數據中心建筑內包括數據機房、電力室、電池室、空調設備用房、柴油發電機房等組成部分,設計時充分考慮電力、空調制冷量、機柜數量和機柜總功率等因素,盡量做到電力資源利用最大化,同時降低PUE、WUE等指標。因此數據中心設計通常采用模塊化布局,按照變壓器和UPS容量推導機架總功耗、機架數量、空調設備配置, 從而形成一個標準的機房模塊,模塊之間進行組合形成一個機房單元,機房單元通過交通空間鏈接和配套用房輔助就形成了完整的建筑平面。
集約化的布局:在消防疏散等條件允許的情況下,同類型設備集中放置處理,即可減少相應空調設備備份總數量,可有效減少分開放置設備占用的建筑空間。例如總體布局中,電力室、電池室布置在建筑平面中部,貼臨兩側布置數據機房,供電電纜至機房距離較短,最為合理。
具體詳見下圖:
上圖某數據中心平面圖中電力室、電池室集中布置在建筑中間,建筑功能房間數量較少,空調等備用設備數量較少,電力電纜距離較近。

數據中心建筑在傳統建筑設計中一般分為兩種建筑類型即(丙二類)工業建筑和民用(公共)建筑。兩種建筑類型在消防設計上存在很大的差異,具體如下:
當數據中心按照廠房進行設計時,數據中心的火災危險性分類應為丙類,數據中心內任一點到最近安全出口的直線距離不應大于表13.2.2的規定。當主機房設有高靈敏度的吸氣式煙霧探測火災報警系統時,主機房內任一點到最近安全出口的直線距離可增加50%。
當數據中心按照民用建筑設計時,直通疏散走道的房間疏散門至最近安全出口的直線距離不應大于表 13.2.3-1的規定。各房間內任一點至房間疏散門的直線距離不應大于表13.2.3-2的規定。建筑內全部采用自動滅火系統時,采用自動噴水滅火系統的區域,安全疏散距離可增加25%。
由此可見工業建筑對疏散距離、防火分區等的要求相對寬松,更有利于大體量數據中心平面建筑布局要求,將數據中心建筑定義為工業建筑可更高效地利用建筑空間。
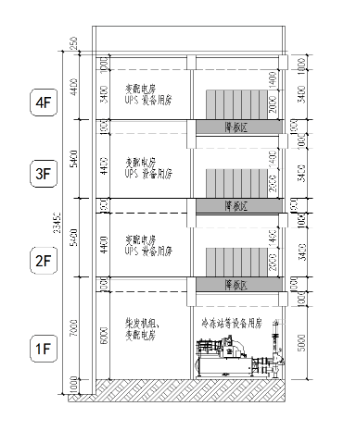
IT機房模塊間機柜高度為2000~2200mm,上部設置綜合布線和列頭柜出線橋架,強弱電間距300mm,凈高需求約3105~3400mm。
以房間級精密空調為例,標準層凈高需求以IT機房模塊間凈高需求為準,房間級空調通常采用設置靜壓箱(800~1000mm高)、封閉冷(熱)通道的方案,加上結構梁高約1000mm。IT機房模塊間建筑空間高度需求約為如下:
靜壓箱:800~1000mm+結構梁(板)1000mm+機柜凈高需求3105~3400mm=合計層高4900~5700mm
一層凈高:一層凈高以滿足變配電房和冷凍機房凈高需求為主,柴發機組設置在室內的亦考慮柴發機組凈高
降板區域:設備房凈高5000mm+結構梁(板)1000mm+靜壓箱800~1000mm=合計層高6800~7000mm
非降板區域:合計層高6800~7000mm+結構梁(板)1000mm=設備房凈高5800~6000mm。該區域可設置對凈高要求最大的柴發機組等設備用房。
頂層層高:頂層層高由于上方無降板區域,其層高在標準層高的基礎上減去靜壓箱層高:3900~4700mm。
層高設計因空調形式不同,而存在一定差異,可根據工程具體情況進行調整。當遇到特定規劃條件時,可通過對工程層高的控制,以達到提高建筑利用率的目的。
綜上,在數據中心建筑設計中,當工藝要求和投資受控時,可通過合理選擇柱網、優化房間功能布局、選擇合理建筑類型、優化層高等不同方式,在有限的物理空間內最大化提升數據中心利用率,助力數據中心基礎設施的高效發展建設。